Listing Tools

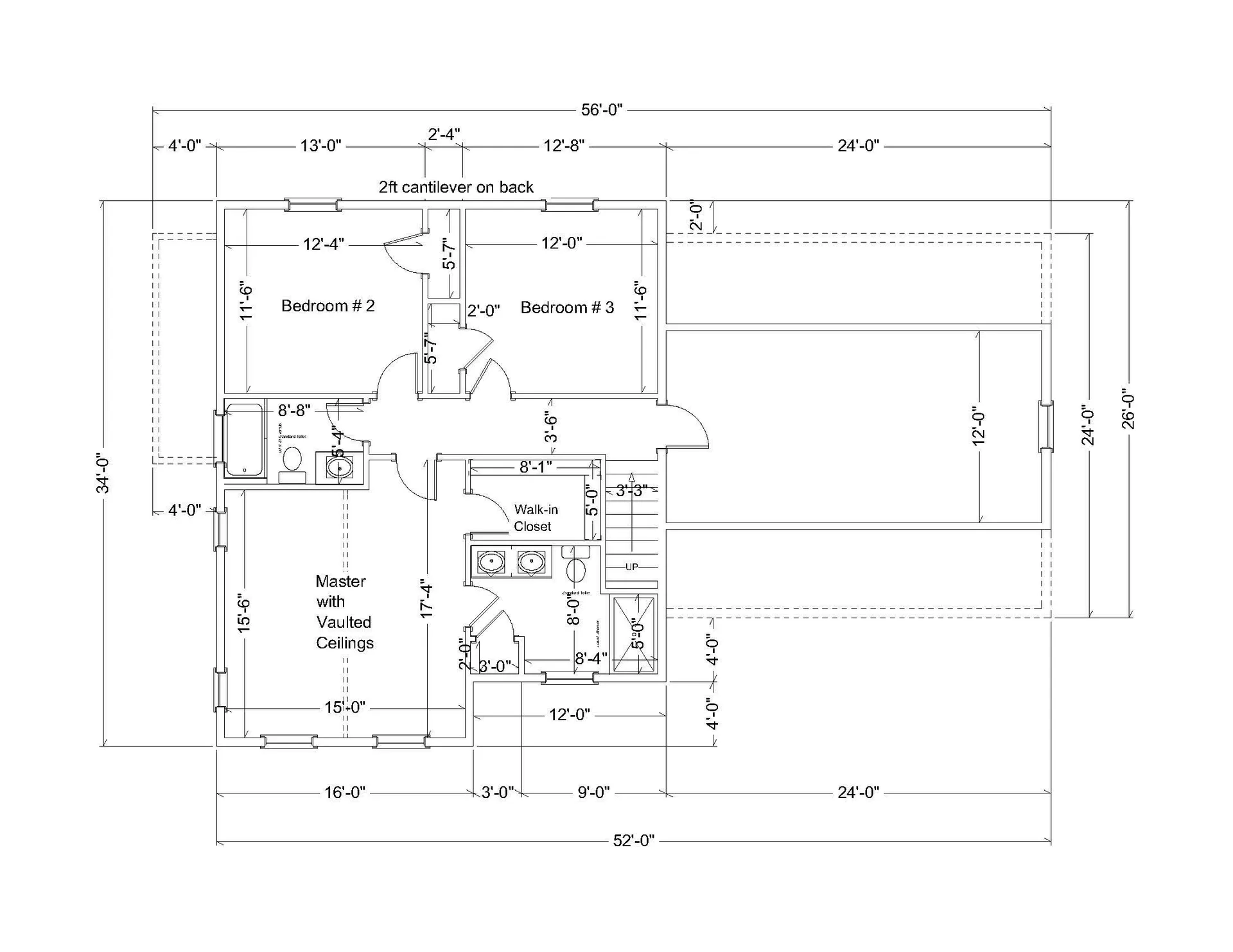
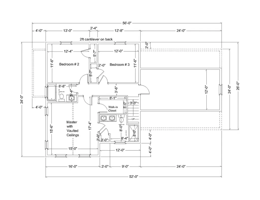
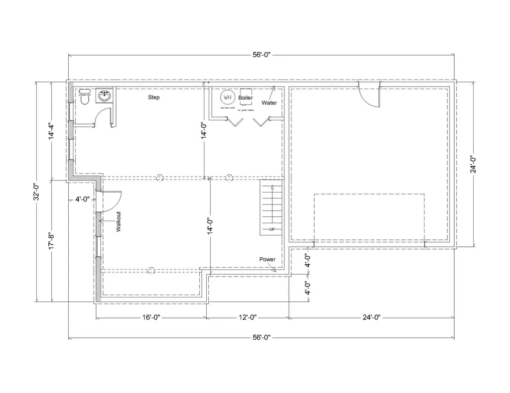
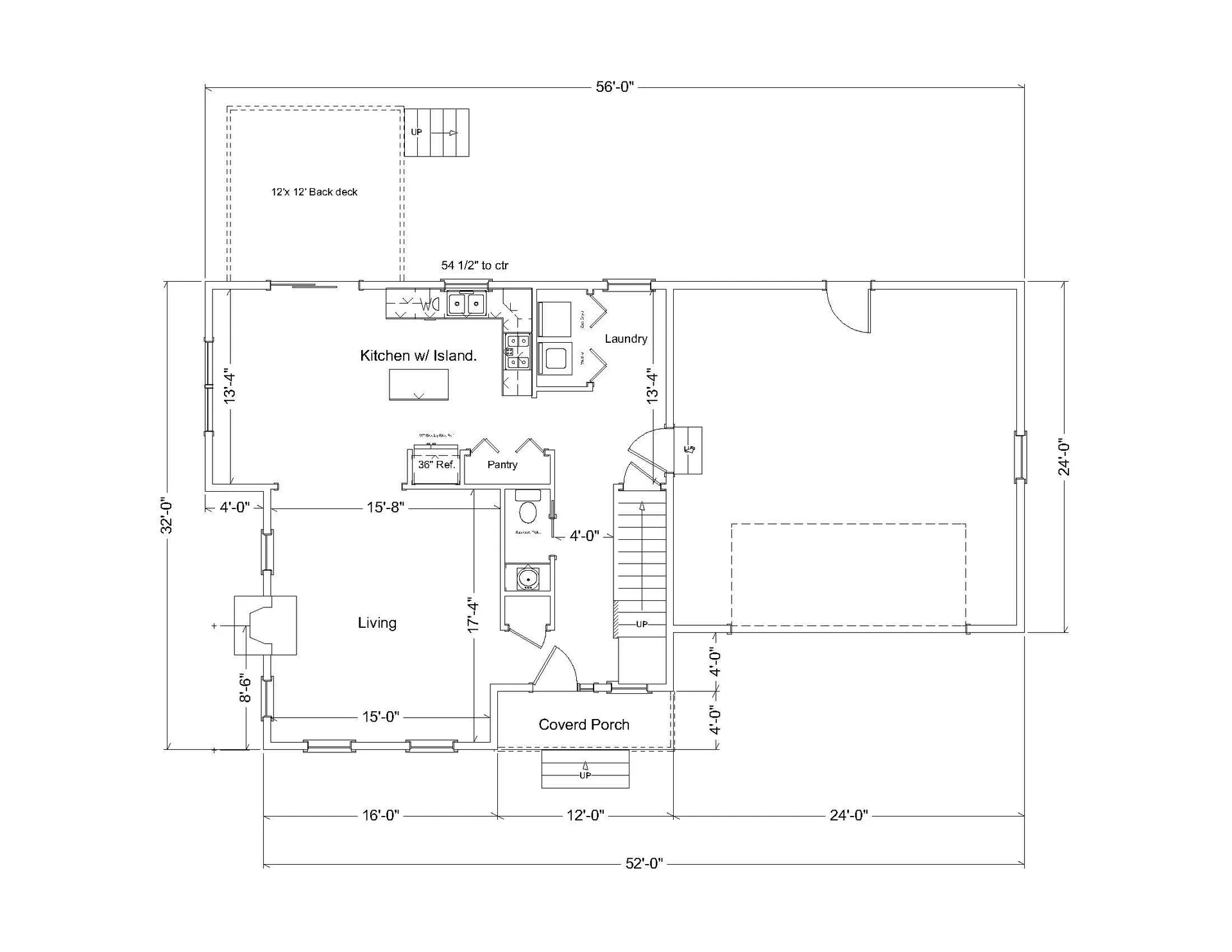
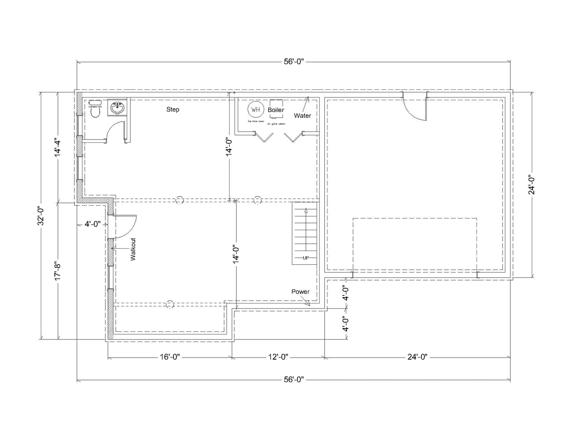
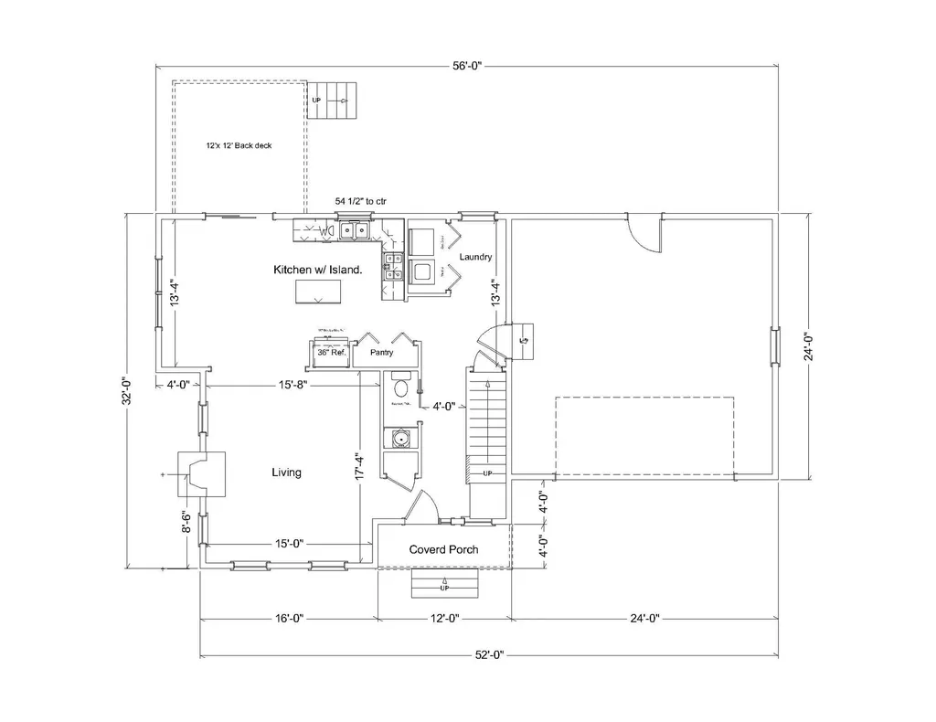
NOW UNDER CONSTRUCTION! Seize the opportunity to build your dream home in a peaceful, private cul-de-sac with only three residences. Nestled in a tranquil, wooded setting with deeded access to 22 acres of preserved open space within the Arbor Meadows Residential Neighborhood, this property also offers access to shared land along the Lamoille River-ideal for kayaking and canoeing. The proposed home features a modern open first-floor plan with a spacious kitchen, dining, and living area, first-floor laundry, and a large deck. It includes three bedrooms, two and a half bathrooms, and a full walkout basement that can be finished into an 875 sq ft recreation room with an additional bathroom. A bonus room above the garage offers further potential for expanded living space. Customize the interior to your style with generous allowances for cabinetry, countertops, flooring, appliances, and other finishes. Enjoy the convenience of being close to schools and a variety of recreational activities, including Fairfax Falls, Smugglers' Notch 4-Season Resort, Mt. Mansfield, hiking, snowshoeing, skiing, and the Lamoille Valley Rail Trail/Bike Path. (photo is likeness only)

Property Details of 91 Pine Haven Road

Map Location

Broker Reciprocity 

Copyright 2025 PrimeMLS, Inc. All rights reserved. This information is deemed reliable, but not guaranteed. The data relating to real estate displayed on this display comes in part from the IDX Program of PrimeMLS. The information being provided is for consumers’ personal, non-commercial use and may not be used for any purpose other than to identify prospective properties consumers may be interested in purchasing. Data last updated November 15, 2025 7:52 AM EST

 

Hi there! How can we help you?

Contact us using the form below or give us a call.

Send Us A Message:

I agree to receive marketing and customer service calls and text messages from Choice Real Estate & Property Management Inc. To opt out, you can reply 'stop' at any time or click the unsubscribe link in the emails. Consent is not a condition of purchase. Msg/data rates may apply. Msg frequency varies. Privacy Policy.

Do not fill in this field:

This site is protected by reCAPTCHA and the Google Privacy Policy and Terms of Service apply.

Hi there! How can we help you?

Contact us using the form below or give us a call.

Send Us A Message:

Do not fill in this field:

This site is protected by reCAPTCHA and the Google Privacy Policy and Terms of Service apply.

Hi there! How can we help you?

Contact us using the form below or give us a call.

Send Us A Message:

Do not fill in this field:

This site is protected by reCAPTCHA and the Google Privacy Policy and Terms of Service apply.

Do not fill in this field:

This site is protected by reCAPTCHA and the Google Privacy Policy and Terms of Service apply.

Do not fill in this field:

This site is protected by reCAPTCHA and the Google Privacy Policy and Terms of Service apply.

Do not fill in this field:

This site is protected by reCAPTCHA and the Google Privacy Policy and Terms of Service apply.

$

Do not fill in this field:

This site is protected by reCAPTCHA and the Google Privacy Policy and Terms of Service apply.